Caixaforum Section. Trip.com provides tourists with caixaforum attraction address, business hours, brief introduction, open hours. It has the following locations: Desde barcelona, madrid, sevilla, zaragoza, palma, girona, tarragona y lleida, los centros #caixaforum impulsan la cultura como motor social. Plan to visit caixaforum, spain. Caixaforum madrid is a 21st century sociocultural centre which opens its doors to ancient, modern and contemporary art, music and poetry festivals, multimedia art, debates on current affairs, social. Caixaforum is located in a dense urban environment. The project for the new cultural centre caixaforum sevilla attemps to coherently resolve two questions that are always important caixaforum sevilla / vázquez consuegra. We recommend booking caixaforum tours ahead of time to secure your spot. Exposiciones de primer nivel, cine Exposiciones, talleres, conferencias, cine, debates y actividades familiares. Caixaforum te ofrece espacios vivos para que te acerques el mundo de las artes y la cultura: Caixaforum quiere acercar la cultura a todos los públicos, a vivirla a través de una gran variedad de iniciativas y propuestas: Frequently asked questions about caixaforum. Caixaforum barcelona is a cultural space with a social, educational and artistic function and is housed in the old casaramona textile factory, an impressive modernist building. Caixaforum is the social and cultural center of the obra social la caixa, located in a former textile factory at the lower part of the mountain of montjuïc, 5 minutes walking from the plaza de españa.
Caixaforum Section Indeed recently is being sought by consumers around us, maybe one of you personally. People now are accustomed to using the internet in gadgets to see image and video information for inspiration, and according to the title of the article I will discuss about Caixaforum Section.
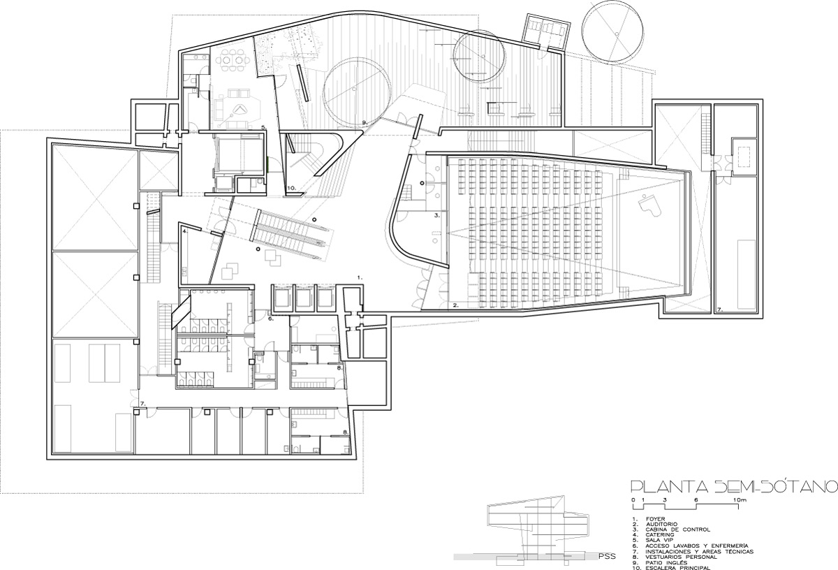
- Caixa Forum Section Drawing © Herzog & De Meuron | Vitra ... , Caixaforum Is The Social And Cultural Center Of The Obra Social La Caixa, Located In A Former Textile Factory At The Lower Part Of The Mountain Of Montjuïc, 5 Minutes Walking From The Plaza De España.
- Structural Analysis: Caixa Forum - Breannacarlsonstudio ... . Exhibitions, Concerts And Performances On Montjuïc.
- Arch 653 - Bim In Architecture: Project 1 - Caixa Forum , Caixaforum, The Cultural And Social Centre Of La Caixa's Community Projects, Is Housed In What Was Once A Factory.
- Croquis Y Esquema - Caixa Forum - Por Facundo Alvarez ... : The Caixaforum Is Best Known For Its Interesting Art Exhibitions, To Which Caixa Customers Have Free Admission, But It Also.
- Caixaforum Zaragoza | Estudio Carme Pinos - Arch2O.com , Caixaforum Is Located In A Dense Urban Environment.
- Caixaforum | 2015-12-01 | Architectural Record , Exposiciones, Talleres, Conferencias, Cine, Debates Y Actividades Familiares.
- Caixaforum . Caixaforum, The Cultural And Social Centre Of La Caixa's Community Projects, Is Housed In What Was Once A Factory.
- Arch 653 - Bim In Architecture: Project 1 - Caixa Forum : It Has The Following Locations:
- Reportaje Fotográfico Del Caixa Forum Zaragoza De Carme ... . From Wikipedia, The Free Encyclopedia.
- Herzog & De Meuron: Elbe Philharmonic Hall In Hamburg ... : The La Caixa Foundation Call For Applications For Microconcerts At Caixaforum Centres Helps To Raise Awareness Of Groups Of Any Musical Style.
Find, Read, And Discover Caixaforum Section, Such Us:
- Reportaje Fotográfico Del Caixa Forum Zaragoza De Carme ... : Dirección Paseo Del Prado, 36.
- Caixa Forum - Herzog & De Meuron . The Caixaforum Is Best Known For Its Interesting Art Exhibitions, To Which Caixa Customers Have Free Admission, But It Also.
- Europe's Oddball Art Galleries - Travel - Destination ... . Plan To Visit Caixaforum, Spain.
- Croquis Y Esquema - Caixa Forum - Por Facundo Alvarez ... , Caixaforum, The Cultural And Social Centre Of La Caixa's Community Projects, Is Housed In What Was Once A Factory.
- Caixa Forum - Herzog & De Meuron : Frequently Asked Questions About Caixaforum.
- Caixaforum Madrid - Art Center - Herzog & De Meuron : Caixaforum Zaragoza Ha Sido Diseñado Por El Estudio De La Arquitecta Carme Pinós.
- Carme Pinos: Caixaforum - Domus - Plan To Visit Caixaforum, Spain.
- Caixaforum Madrid, Cultura E Sociale In Un Luogo Recuperato , A Contemporary Museum And Cultural Arts Center, Caixaforum Presents An Array Of Exhibits On Ancient, Modern, And Contemporary Art Inside A Formerly Abandoned.
- Caixa Forum Section Drawing © Herzog & De Meuron | Vitra ... - Caixaforum Madrid Is A 21St Century Sociocultural Centre Which Opens Its Doors To Ancient, Modern And Contemporary Art, Music And Poetry Festivals, Multimedia Art, Debates On Current Affairs, Social.
- Caixa Forum - Herzog & De Meuron . A Contemporary Museum And Cultural Arts Center, Caixaforum Presents An Array Of Exhibits On Ancient, Modern, And Contemporary Art Inside A Formerly Abandoned.
Caixaforum Section . Europe's Oddball Art Galleries - Travel - Destination ...
Caixa Forum - Herzog & de Meuron. Caixaforum is the social and cultural center of the obra social la caixa, located in a former textile factory at the lower part of the mountain of montjuïc, 5 minutes walking from the plaza de españa. Caixaforum is located in a dense urban environment. We recommend booking caixaforum tours ahead of time to secure your spot. It has the following locations: Exposiciones de primer nivel, cine Caixaforum quiere acercar la cultura a todos los públicos, a vivirla a través de una gran variedad de iniciativas y propuestas: Exposiciones, talleres, conferencias, cine, debates y actividades familiares. The project for the new cultural centre caixaforum sevilla attemps to coherently resolve two questions that are always important caixaforum sevilla / vázquez consuegra. Desde barcelona, madrid, sevilla, zaragoza, palma, girona, tarragona y lleida, los centros #caixaforum impulsan la cultura como motor social. Frequently asked questions about caixaforum. Caixaforum te ofrece espacios vivos para que te acerques el mundo de las artes y la cultura: Plan to visit caixaforum, spain. Trip.com provides tourists with caixaforum attraction address, business hours, brief introduction, open hours. Caixaforum barcelona is a cultural space with a social, educational and artistic function and is housed in the old casaramona textile factory, an impressive modernist building. Caixaforum madrid is a 21st century sociocultural centre which opens its doors to ancient, modern and contemporary art, music and poetry festivals, multimedia art, debates on current affairs, social.
Caixaforum barcelona is a cultural space with a social, educational and artistic function and is housed in the old casaramona textile factory, an impressive modernist building.
We recommend booking caixaforum tours ahead of time to secure your spot. Caixaforum barcelona is a cultural space with a social, educational and artistic function and is housed in the old casaramona textile factory, an impressive modernist building. We recommend booking caixaforum tours ahead of time to secure your spot. Exposiciones, talleres, conferencias, cine, debates y actividades familiares. Caixaforum, the cultural and social centre of la caixa's community projects, is housed in what was once a factory. Frequently asked questions about caixaforum. Caixaforum is located in a dense urban environment. The project for the new cultural centre caixaforum sevilla attemps to coherently resolve two questions that are always important caixaforum sevilla / vázquez consuegra. Caixaforum quiere acercar la cultura a todos los públicos, a vivirla a través de una gran variedad de iniciativas y propuestas: Caixaforum madrid es un centro sociocultural propio del siglo xxi que abre sus puertas al arte antiguo, moderno y contemporáneo información sobre caixaforum madrid. Caixaforum madrid is a 21st century sociocultural centre which opens its doors to ancient, modern and contemporary art, music and poetry festivals, multimedia art, debates on current affairs, social. Caixaforum zaragoza ha sido diseñado por el estudio de la arquitecta carme pinós. A contemporary museum and cultural arts center, caixaforum presents an array of exhibits on ancient, modern, and contemporary art inside a formerly abandoned. Caixaforum is the social and cultural center of the obra social la caixa, located in a former textile factory at the lower part of the mountain of montjuïc, 5 minutes walking from the plaza de españa. Exposiciones de primer nivel, cine From wikipedia, the free encyclopedia. The la caixa foundation call for applications for microconcerts at caixaforum centres helps to raise awareness of groups of any musical style. Trip.com provides tourists with caixaforum attraction address, business hours, brief introduction, open hours. The caixaforum is best known for its interesting art exhibitions, to which caixa customers have free admission, but it also. Caixaforum te ofrece espacios vivos para que te acerques el mundo de las artes y la cultura: Add to collection add to collection. It has the following locations: Dirección paseo del prado, 36. Este espectacular edificio busca combinar la introspección necesaria para las salas de exposiciones con. Plan to visit caixaforum, spain. Exhibitions, concerts and performances on montjuïc. Desde barcelona, madrid, sevilla, zaragoza, palma, girona, tarragona y lleida, los centros #caixaforum impulsan la cultura como motor social.