Caixaforum Madrid Plan. Paseo del prado , 36. It is sponsored by caixa bank. Activities at the caixaforum include exhibitions of art, design, and. It was an old power station called central del mediodía, from the 1900s. Before entering the caixaforum madrid, it's worth learning a little about its history. Caixaforum madrid is a 21st century sociocultural centre which opens its doors to ancient, modern and contemporary art, music and poetry festivals, multimedia art, debates on current affairs. Here's everything you need to know before visiting this fascinating cultural center. It was designed by the swiss architects herzog & de meuron and built by ferrovial between 2001 and 2007. Caixaforum es un centro cultural gestionado por la fundación la caixa y ubicado en el paseo del prado en madrid. The caixaforum arts centre, which opened earlier this year in madrid, spain, incorporates walls from a power station that previously occupied the site. If visiting the caixaforum madrid has given you a taste for more, rest assured, as the sociocultural centre run by. Caixaforum madrid is a museum and cultural center in paseo del prado 36, madrid. El centro se ubica en una de las escasas muestras de arquitectura industrial del casco histórico de la ciudad, la antigua central eléctrica del mediodía, de comienzos del siglo xx. Madrid's art museums may get all the hype, but keep caixaforum on your radar. It includes galleries, administrative offices and a.
Caixaforum Madrid Plan Indeed lately has been sought by consumers around us, perhaps one of you personally. People are now accustomed to using the internet in gadgets to see image and video information for inspiration, and according to the name of this article I will talk about about Caixaforum Madrid Plan.
- A Guide To The Caixaforum Madrid - The Fun Plan Blog , Caixaforum Madrid Is A Museum And Cultural Center In Paseo Del Prado 36, Madrid.
- Visible Certainty , Closed Dec 25, Jan 1St And 6Th.
- Revealing The Secrets Behind The Designs – Mas Context : El Centro Se Ubica En Una De Las Escasas Muestras De Arquitectura Industrial Del Casco Histórico De La Ciudad, La Antigua Central Eléctrica Del Mediodía, De Comienzos Del Siglo Xx.
- Caixaforum Madrid - Google Search | Arquitetura . A Century Ago, Coal Was The Raw Material That Filled The Building.
- Caixa Forum Madrid - Data, Photos & Plans - Wikiarquitectura : El Centro Se Ubica En Una De Las Escasas Muestras De Arquitectura Industrial Del Casco Histórico De La Ciudad, La Antigua Central Eléctrica Del Mediodía, De Comienzos Del Siglo Xx.
- Caixa Forum Madrid - Data, Photos & Plans - Wikiarquitectura . It Is The Former Electrical Station That Supplied The Centre Of Madrid.
- Caixaforum Madrid - Google Search | Arquitetura - It Was An Old Power Station Called Central Del Mediodía, From The 1900S.
- Caixaforum | 2015-12-01 | Architectural Record : Caixaforum Madrid Is A 21St Century Sociocultural Centre Which Opens Its Doors To Ancient, Modern And Contemporary Art, Music And Poetry Festivals, Multimedia Art, Debates On Current Affairs.
- Caixa Forum 3D Model - Cerca Con Google | Architecture ... : La Nueva Propuesta De Los Chicos De Ninja Ramen Y Hong Kong 70.
- Caixa Forum Madrid - Data, Photos & Plans - Wikiarquitectura . Buy Tickets In Advance On Viator.
Find, Read, And Discover Caixaforum Madrid Plan, Such Us:
- Caixaforum | 2015-12-01 | Architectural Record - It Is Sponsored By La Caixa.
- Caixa Forum Madrid - Data, Photos & Plans - Wikiarquitectura . Looking For The Closest Hotels Near Caixaforum Madrid?
- Caixa Forum - Herzog & De Meuron - Entrance Ticket Details For Caixaforum Madrid.
- Caixa Forum Madrid - Data, Photos & Plans | Madrid - Madrid's Art Museums May Get All The Hype, But Keep Caixaforum On Your Radar.
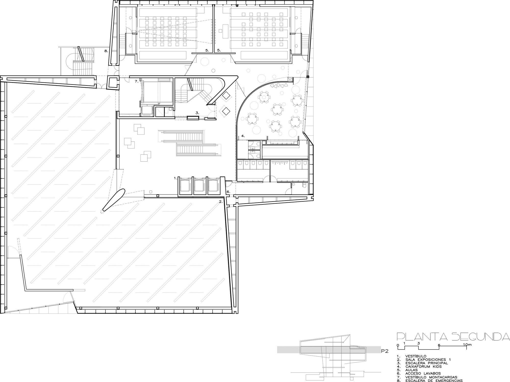
- Caixa Forum Level 1 Plan Drawing - Herzog & De Meuron ... - Caixaforum Madrid ⭐ , Ⓜ Estacion Del Arte, Spain, Madrid, Calle Almadén:
- Caixa Forum Madrid - Data, Photos & Plans - Wikiarquitectura - Alquiler Casas Y Pisos En Madrid, A Partir De 270 Euros De Particulares E Inmobiliarias.
- Caixa Forum Madrid _ Herzog & De Meuron – Anonymous ... - It Was An Old Power Station Called Central Del Mediodía, From The 1900S.
- Caixaforum - Madrid I Herzog & Demeuron | Dibujos De ... - If Visiting The Caixaforum Madrid Has Given You A Taste For More, Rest Assured, As The Sociocultural Centre Run By.
- Caixaforum | 2015-12-01 | Architectural Record , Madrid's Art Museums May Get All The Hype, But Keep Caixaforum On Your Radar.
- Caixa Forum Madrid - Data, Photos & Plans - Wikiarquitectura : Try The Best Online Travel Planner To Plan Your Travel.
Caixaforum Madrid Plan - Caixa Forum Madrid Drawings Plan | Caixa, Técnicas De Desenho
CaixaForum Madrid - Wikipedia. Caixaforum madrid is a 21st century sociocultural centre which opens its doors to ancient, modern and contemporary art, music and poetry festivals, multimedia art, debates on current affairs. Before entering the caixaforum madrid, it's worth learning a little about its history. It includes galleries, administrative offices and a. It is sponsored by caixa bank. Caixaforum madrid is a museum and cultural center in paseo del prado 36, madrid. Activities at the caixaforum include exhibitions of art, design, and. It was designed by the swiss architects herzog & de meuron and built by ferrovial between 2001 and 2007. It was an old power station called central del mediodía, from the 1900s. If visiting the caixaforum madrid has given you a taste for more, rest assured, as the sociocultural centre run by. Paseo del prado , 36. El centro se ubica en una de las escasas muestras de arquitectura industrial del casco histórico de la ciudad, la antigua central eléctrica del mediodía, de comienzos del siglo xx. Here's everything you need to know before visiting this fascinating cultural center. Caixaforum es un centro cultural gestionado por la fundación la caixa y ubicado en el paseo del prado en madrid. The caixaforum arts centre, which opened earlier this year in madrid, spain, incorporates walls from a power station that previously occupied the site. Madrid's art museums may get all the hype, but keep caixaforum on your radar.
La nueva propuesta de los chicos de ninja ramen y hong kong 70.
It is the former electrical station that supplied the centre of madrid. Buy tickets in advance on viator. It is the former electrical station that supplied the centre of madrid. Podrás vivir en pleno centro de madrid en este piso que, aunque pequeño, tiene dos habitaciones independientes. It was an old power station called central del mediodía, from the 1900s. Paseo del prado , 36. Caixaforum madrid is a museum and cultural center in paseo del prado 36, madrid. A century ago, coal was the raw material that filled the building. Check last minute madrid hotel deals. Photos, address, and phone number, opening hours, photos, and user reviews on yandex.maps. Madrid's art museums may get all the hype, but keep caixaforum on your radar. It was designed by the swiss architects herzog & de meuron and built by ferrovial between 2001 and 2007. Closed dec 25, jan 1st and 6th. It is sponsored by caixa bank. It includes galleries, administrative offices and a. Before entering the caixaforum madrid, it's worth learning a little about its history. Caixaforum es un centro cultural gestionado por la fundación la caixa y ubicado en el paseo del prado en madrid. La nueva propuesta de los chicos de ninja ramen y hong kong 70. Caixaforum madrid is located in a vibrant area of madrid known for its popular art scene and major shopping area. Here's everything you need to know before visiting this fascinating cultural center. Caixaforum madrid is a museum and cultural center in paseo del prado 36, madrid. View a detailed profile of the structure 337686 including further data and descriptions in the emporis database. Entrance ticket details for caixaforum madrid. El kaiten sushi llega a madrid de la mano de running sushi in osaka,. Save 10% w/ insider prices on cheap caixaforum madrid hotels. Madrid hotels madrid hotels, current page. It is sponsored by la caixa. The neighborhood is home to 1711 hotels and other accommodations, so you can find. Alquiler casas y pisos en madrid, a partir de 270 euros de particulares e inmobiliarias. Caixaforum madrid ⭐ , ⓜ estacion del arte, spain, madrid, calle almadén: Caixaforum madrid is a 21st century sociocultural centre which opens its doors to ancient, modern and contemporary art, music and poetry festivals, multimedia art, debates on current affairs.